Verkocht onder voorbehoud:Robertstraat 38, 4571 AT Axel - Foto
Verkocht onder voorbehoud
+20

Robertstraat 38 4571 AT Axel € 187.500,- k.k.

  • Woonhuis
  • 4 kamers
  • 3 slaapkamers
  • 1 badkamers
  • Bouwjaar 1960
  • 167 m² perceeloppervlakte
  • 81 m² gebruiksoppervlakte
  • E Energielabel E

Beschrijving

Leuke eindwoning met drie slaapkamers een fijne tuin

Deze fijne eindwoning uit 1960 beschikt over drie slaapkamers, een ruime tuin met berging en een woonoppervlakte van ca. 82m², gelegen op 167 m² eigen grond. Een praktische gezinswoning met een prettige indeling en diverse voorzieningen.

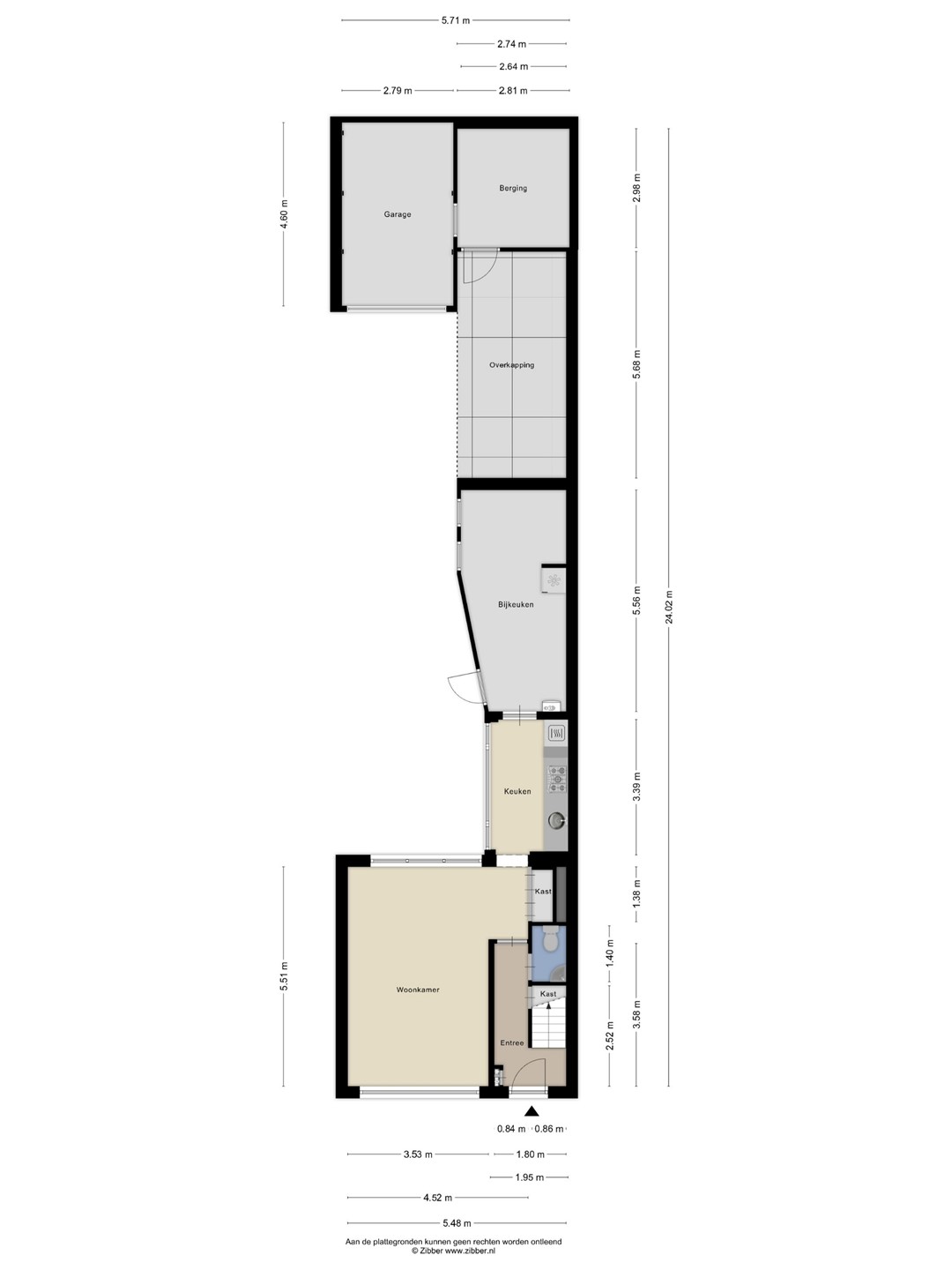
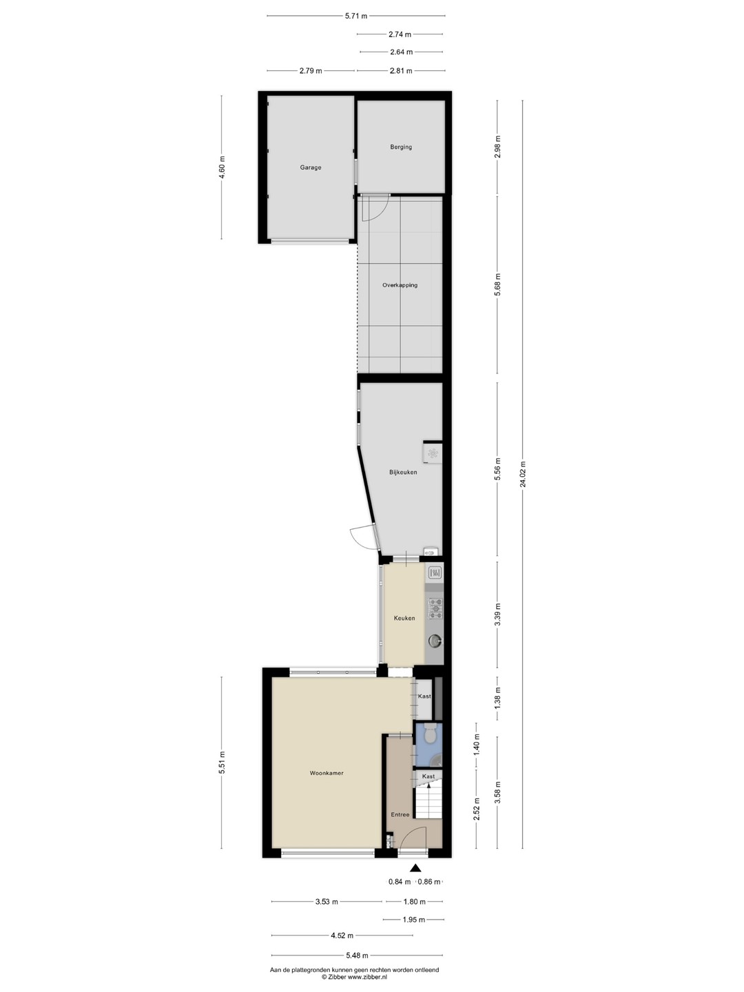
Indeling
Begane grond:
Entree in de hal met meterkast, toilet en trapopgang naar de eerste verdieping. De doorzonwoonkamer is licht en biedt ruimte voor een gezellige zit- en eethoek. De keuken is voorzien van een gaskookplaat, oven en afzuigkap en geeft toegang tot de bijkeuken. Vanuit de bijkeuken bereik je de achtertuin met berging en garage.

Eerste verdieping:
Overloop met toegang tot drie slaapkamers en een doucheruimte met wastafel.

Tweede verdieping:
Praktische bergzolder, bereikbaar via een vlizotrap.

Bijzonderheden:
✓ 6 zonnepanelen
✓ Rolluiken
✓ Fijne achtertuin met berging en garage (let op: garage is niet met de auto bereikbaar)
✓ Direct beschikbaar
✓ Energielabel E

Nieuwsgierig geworden? Neem gerust contact met ons op voor meer informatie of het plannen van een bezichtiging.

Kaart

Kenmerken

Overdracht

Referentienummer
1215
Vraagprijs
€ 187.500,- k.k.
Status
Verkocht onder voorbehoud
Aanvaarding
Per donderdag 9 april 2026
Aangeboden sinds
Donderdag 5 februari 2026
Laatste wijziging
Dinsdag 3 maart 2026

Bouw

Type object
Woonhuis, eengezinswoning, hoekwoning
Soort bouw
Bestaande bouw
Bouwperiode
1960
Dakbedekking
Dakpannen
Type dak
Zadeldak

Oppervlaktes en inhoud

Perceeloppervlakte
167 m²
Woonoppervlakte
81,2 m²
Inhoud
288 m³
Oppervlakte externe bergruimte
21,5 m²
Oppervlakte gebouwgebonden buitenruimte
15,5 m²

Indeling

Aantal bouwlagen
3
Aantal kamers
4 (waarvan 3 slaapkamers)
Aantal badkamers
1 (en 1 apart toilet)

Tuin

Type
Achtertuin
Oriëntering
Noorden
Heeft een achterom
Ja
Staat
Normaal
Tuin 2 - Type
Voortuin
Tuin 2 - Oriëntering
Zuiden
Tuin 2 - Staat
Normaal

Energieverbruik

Energielabel
E

CV ketel

CV ketel
Intergas
Warmtebron
Gas
Bouwjaar
2014
Combiketel
Ja
Eigendom
Eigendom

Uitrusting

Warm water
CV-ketel
Verwarmingssysteem
Centrale verwarming
Parkeergelegenheid
Garage
Tuin aanwezig
Ja
Heeft een garage
Ja
Heeft rolluiken
Ja
Heeft schuur/berging
Ja
Heeft zonnepanelen
Ja

Kadastrale gegevens

Kadastrale aanduiding
Terneuzen F 1429
Perceeloppervlakte
167 m²
Omvang
Geheel perceel
Eigendomsituatie
Eigen grond

Media

Plattegronden