Verkocht:Bosjesweg 32, 4541 AP Sluiskil - Foto
Verkocht
+25

Bosjesweg 32 4541 AP Sluiskil

  • Woonhuis
  • 4 kamers
  • 3 slaapkamers
  • 1 badkamers
  • Bouwjaar 1955
  • 152 m² perceeloppervlakte
  • 71 m² gebruiksoppervlakte
  • D Energielabel D

Beschrijving

Ben jij op zoek naar een betaalbare woning met ruimte én een rustige ligging? Dan is deze woning aan de Bosjesweg 32 in Sluiskil precies wat je zoekt! Gelegen in een dorp nabij de Belgische grens, biedt deze woning een fijne woonomgeving met alle dagelijkse voorzieningen binnen handbereik. De woning beschikt over drie slaapkamers, een lichte woonkamer en een praktische indeling.

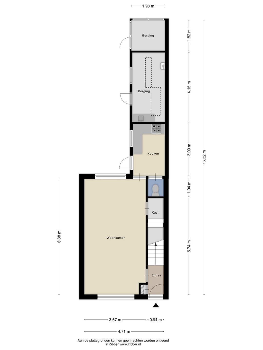
Begane grond
Via de entree met meterkast en toilet kom je binnen in de lichte woonkamer. De woonkamer is ruim opgezet en biedt voldoende plek voor een gezellige zithoek en eethoek. Aan de achterzijde bevindt zich de keuken. Vanuit de keuken heb je toegang tot de tuin, die toegang geeft tot twee handige bergingen. Deze ruimtes zijn ideaal te gebruiken als opslag of hobbyruimte.

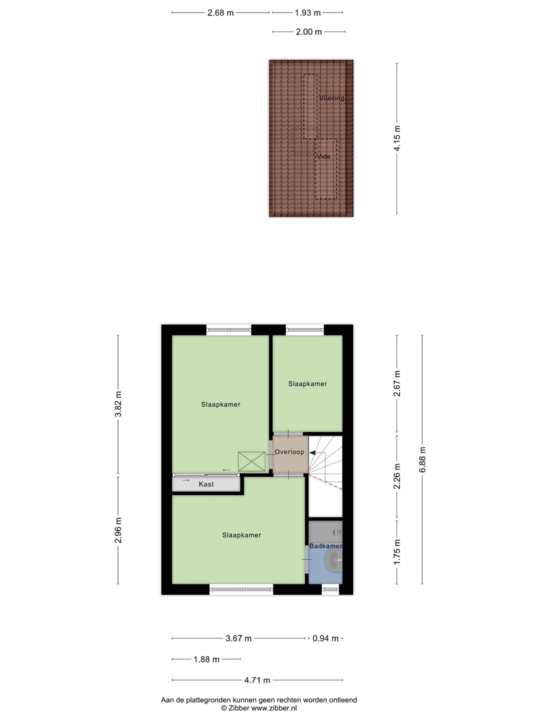
Eerste verdieping
Op de verdieping vind je drie slaapkamers van goed formaat, waardoor er volop mogelijkheden zijn voor een gezin, een thuiskantoor of logeerkamer. Daarnaast bevindt zich hier de badkamer, voorzien van de basisfaciliteiten.

Zolder
Via een vlizotrap is de vliering bereikbaar, die extra bergruimte biedt.

Buiten
De woning beschikt over een tuin waar je in alle rust kunt genieten van het buitenleven.

Pluspunten op een rij:
- Gelegen in een rustige woonstraat;
- Drie slaapkamers;
- Betaalbare koopwoning;
- Gedeeltelijk kuststof kozijnen;
- Nabij uitvalswegen richting Terneuzen en België;

Wil jij een kijkje nemen? Plan nu alvast een bezichtiging in en ontdek de mogelijkheden van deze woning!

Kaart

Kenmerken

Overdracht

Referentienummer
1125
Vraagprijs
€ 174.500,- k.k.
Status
Verkocht
Aanvaarding
Direct
Aangeboden sinds
Donderdag 2 oktober 2025
Laatste wijziging
Zaterdag 29 november 2025

Bouw

Type object
Woonhuis, eengezinswoning, tussenwoning
Soort bouw
Bestaande bouw
Bouwperiode
1955
Dakbedekking
Dakpannen
Type dak
Zadeldak
Isolatievormen
Gedeeltelijk dubbel glas

Oppervlaktes en inhoud

Perceeloppervlakte
152 m²
Woonoppervlakte
71,2 m²
Woonkameroppervlakte
25,25 m²
Keukenoppervlakte
6,12 m²
Inhoud
280 m³
Oppervlakte overige inpandige ruimten
8 m²
Oppervlakte externe bergruimte
3,6 m²

Indeling

Aantal bouwlagen
3
Aantal kamers
4 (waarvan 3 slaapkamers)
Aantal badkamers
1 (en 1 apart toilet)

Tuin

Type
Achtertuin

Energieverbruik

Energielabel
D

CV ketel

Warmtebron
Gas
Combiketel
Ja
Eigendom
Eigendom

Uitrusting

Warm water
CV-ketel
Verwarmingssysteem
Centrale verwarming
Tuin aanwezig
Ja
Heeft rolluiken
Ja
Heeft schuur/berging
Ja

Kadastrale gegevens

Kadastrale aanduiding
Terneuzen G 2815
Perceeloppervlakte
152 m²
Omvang
Geheel perceel
Eigendomsituatie
Eigen grond