Nieuw in verkoop:Donze Visserstraat 108, 4531 BG Terneuzen - Foto
Nieuw in verkoop
+18

Donze Visserstraat 108 4531 BG Terneuzen € 175.000,- k.k.

  • Woonhuis
  • 3 kamers
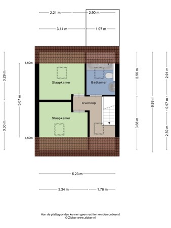
  • 2 slaapkamers
  • 1 badkamers
  • Bouwjaar 1930
  • 59 m² perceeloppervlakte
  • 67 m² gebruiksoppervlakte

Beschrijving

Donze Visserstraat 108 – Terneuzen

Welkom aan de Donze Visserstraat 108 in Terneuzen! Een leuke starterswoning met een prettige indeling en twee slaapkamers. Een fijne woning waar je direct kunt wonen en die alles biedt voor een comfortabele start.

De woning ligt in een rustige straat en is gunstig gelegen ten opzichte van winkels, voorzieningen en uitvalswegen. Een ideale kans voor starters die op zoek zijn naar een woning op een goede locatie.

Highlights:
- Leuke starterswoning;
- Twee slaapkamers;
- Prettige en praktische indeling;
- Centrale ligging in Terneuzen;
- Per direct beschikbaar;
- (Energielabel is aangevraagd)

Interesse? Plan snel een bezichtiging!

Kaart

Kenmerken

Overdracht

Referentienummer
1208
Vraagprijs
€ 175.000,- k.k.
Status
Nieuw in verkoop
Aanvaarding
In overleg
Aangeboden sinds
Vrijdag 23 januari 2026
Laatste wijziging
Donderdag 29 januari 2026

Bouw

Type object
Woonhuis, eengezinswoning, tussenwoning
Soort bouw
Bestaande bouw
Bouwperiode
1930
Dakbedekking
Dakpannen
Type dak
Zadeldak

Oppervlaktes en inhoud

Perceeloppervlakte
59 m²
Woonoppervlakte
67,1 m²
Inhoud
238 m³

Indeling

Aantal bouwlagen
2
Aantal kamers
3 (waarvan 2 slaapkamers)
Aantal badkamers
1

Tuin

Type
Achtertuin
Hoofdtuin
Ja
Oriëntering
West
Staat
Normaal

CV ketel

Warmtebron
Gas
Bouwjaar
2024
Combiketel
Ja
Eigendom
Eigendom

Uitrusting

Verwarmingssysteem
Centrale verwarming
Badkamervoorzieningen
Ligbad
Toilet
Wastafel
Heeft airco
Ja
Tuin aanwezig
Ja

Kadastrale gegevens

Kadastrale aanduiding
Terneuzen L 946
Perceeloppervlakte
59 m²
Omvang
Geheel perceel
Eigendomsituatie
Eigen grond

Media

Plattegronden