Verkocht onder voorbehoud:Rivierenpark 57, 4535 EJ Terneuzen - Foto
Verkocht onder voorbehoud
+28

Rivierenpark 57 4535 EJ Terneuzen € 242.500,- k.k.

  • Woonhuis
  • 4 kamers
  • 4 slaapkamers
  • 1 badkamers
  • Bouwjaar 1977
  • 153 m² perceeloppervlakte
  • 123 m² gebruiksoppervlakte
  • B Energielabel B

Beschrijving

Per direct beschikbaar!
Gelegen in het gezellige "Rivierenpark" vindt u deze ruime tussenwoning, perfect voor een gezin. De woning beschikt over vier slaapkamers, een berging en een onderhoudsvriendelijke tuin. Dankzij de parkachtige ligging heeft u het voordeel van rust, terwijl de nabijheid van scholen, de bakker en andere voorzieningen het praktisch maakt voor het dagelijks leven.

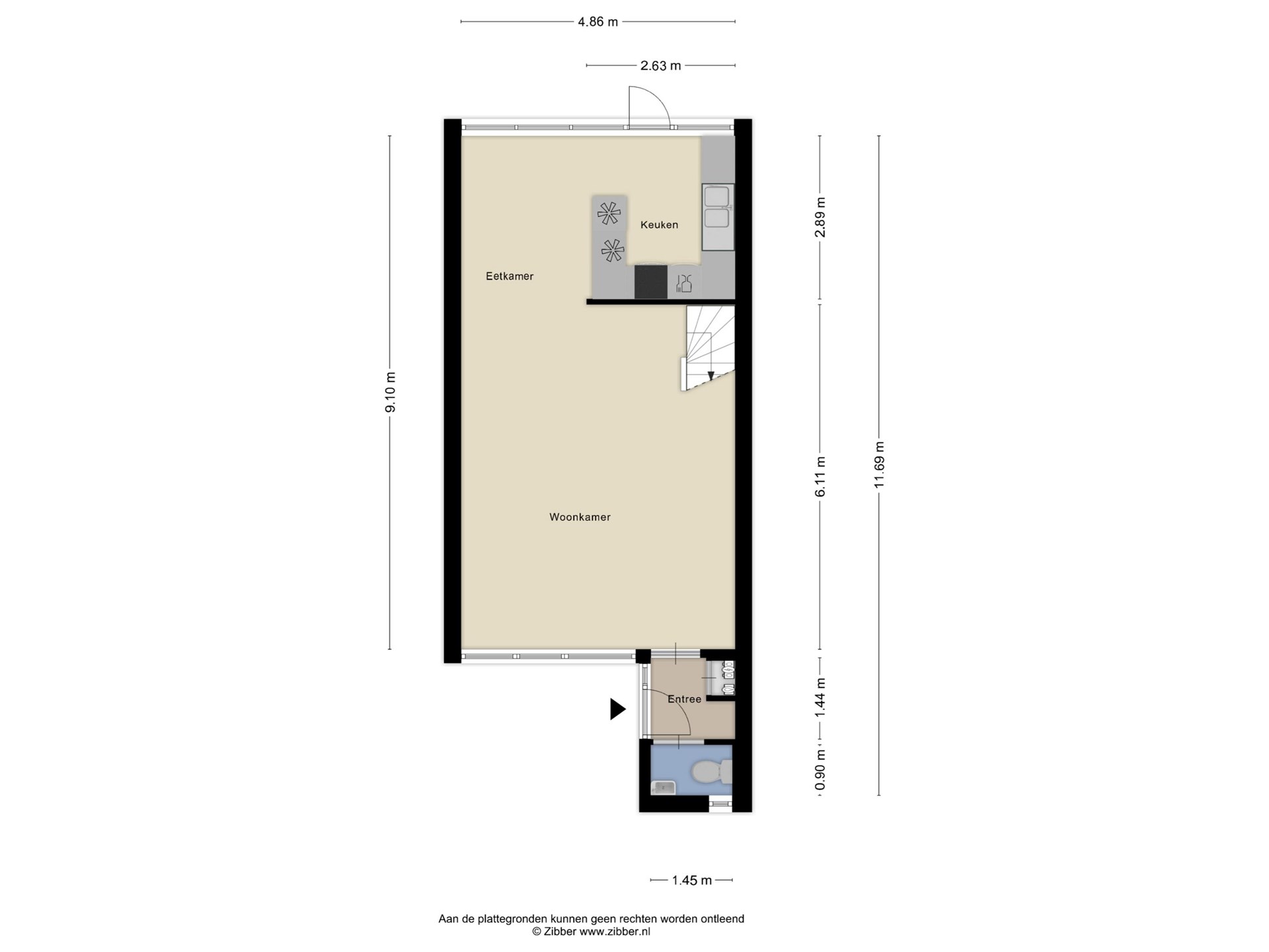
De woning biedt een grote leefruimte. Het is een woning die u zeker gezien moet hebben! Bij binnenkomst treft u de hal met de meterkast en het toilet aan. De ruime en lichte woonkamer is voorzien van plavuizen en een trap die naar de verdieping leidt. De open keuken, in hoekopstelling, zorgt voor een fijne kookruimte en is voorzien van een close-in boiler.

Op de eerste verdieping vindt u een overloop met een vaste trap naar de tweede verdieping. De drie ruime slaapkamers bieden voldoende ruimte voor een gezin, één slaapkamer dient nu als dressing en maakt het geheel compleet. De badkamer is royaal en voorzien van een wastafel, ligbad en een tweede toilet.

Op de tweede verdieping bevindt zich een ruime slaapkamer met een prachtige, lichte serre die veel extra sfeer, ruimte en licht biedt.

Wilt u deze woning bezichtigen? Dat kan tijdens de Open Huizen Dag aanstaande zaterdag 5 april tussen 11:00 en 15:00 uur. U kunt ook een afspraak maken via ons kantoor, zodat we een geschikt moment voor u kunnen inplannen. Tot dan!

Kaart

Kenmerken

Overdracht

Referentienummer
1086
Vraagprijs
€ 242.500,- k.k.
Status
Verkocht onder voorbehoud
Aanvaarding
Per zondag 1 juni 2025
Aangeboden sinds
Woensdag 2 april 2025
Laatste wijziging
Woensdag 24 september 2025

Bouw

Type object
Woonhuis, eengezinswoning, tussenwoning
Soort bouw
Bestaande bouw
Bouwperiode
1977
Dakbedekking
Dakpannen
Type dak
Zadeldak
Isolatievormen
Dubbel glas

Oppervlaktes en inhoud

Perceeloppervlakte
153 m²
Woonoppervlakte
123 m²
Inhoud
350 m³

Indeling

Aantal bouwlagen
3
Aantal kamers
4 (waarvan 4 slaapkamers)
Aantal badkamers
1 (en 1 apart toilet)

Locatie

Ligging
Dichtbij openbaar vervoer
In woonwijk
Nabij school

Tuin

Type
Voortuin
Heeft een achterom
Ja
Tuin 2 - Type
Achtertuin
Tuin 2 - Heeft een achterom
Ja

Energieverbruik

Energielabel
B

CV ketel

CV ketel
Intergas
Warmtebron
Gas
Bouwjaar
2021
Eigendom
Huur

Uitrusting

Warm water
CV-ketel
Verwarmingssysteem
Centrale verwarming
Ventilatie methode
Mechanische ventilatie
Heeft kabel-tv
Ja
Glasvezelaansluiting aanwezig
Ja
Tuin aanwezig
Ja
Beschikt over een internetverbinding
Ja
Heeft schuur/berging
Ja
Heeft ventilatie
Ja

Kadastrale gegevens

Kadastrale aanduiding
Terneuzen N 1074
Perceeloppervlakte
153 m²