Open huis: 28 maart 11:00 - 15:00
Koop:Vogellaan 4A, 4533 ET Terneuzen - Foto
+32

Vogellaan 4A 4533 ET Terneuzen € 427.500,- k.k.

  • Woonhuis
  • 5 kamers
  • 4 slaapkamers
  • 1 badkamers
  • Bouwjaar 2008
  • 160 m² perceeloppervlakte
  • 131 m² gebruiksoppervlakte
  • A++ Energielabel A++

Beschrijving

Instapklare en energiezuinige woning gelegen in het geliefde Othene Zuid met maar liefst 19 zonnepanelen!

Op een fijne en gewilde woonlocatie in het populaire Othene Zuid staat deze ruime en verrassend ingedeelde woning. De woning is uitstekend onderhouden, volledig instapklaar.

Indeling
Begane grond:
Binnenkomst via de entree met meterkast en modern toilet. Vanuit de hal bereik je de royale, lichte slaapkamer met luxe walk-in closet. Eventueel is deze walk-in-closet om te toveren tot badkamer voor wie levensloopbestendig wil wonen of gewoon van extra comfort houdt! De sfeervolle woonkamer is voorzien van een witte open keuken met volop lichtinval. De keuken beschikt over alle wenselijke inbouwapparatuur: gasfornuis, afzuigkap, oven, koelkast, diepvries, vaatwasser én een Quooker-kraan.

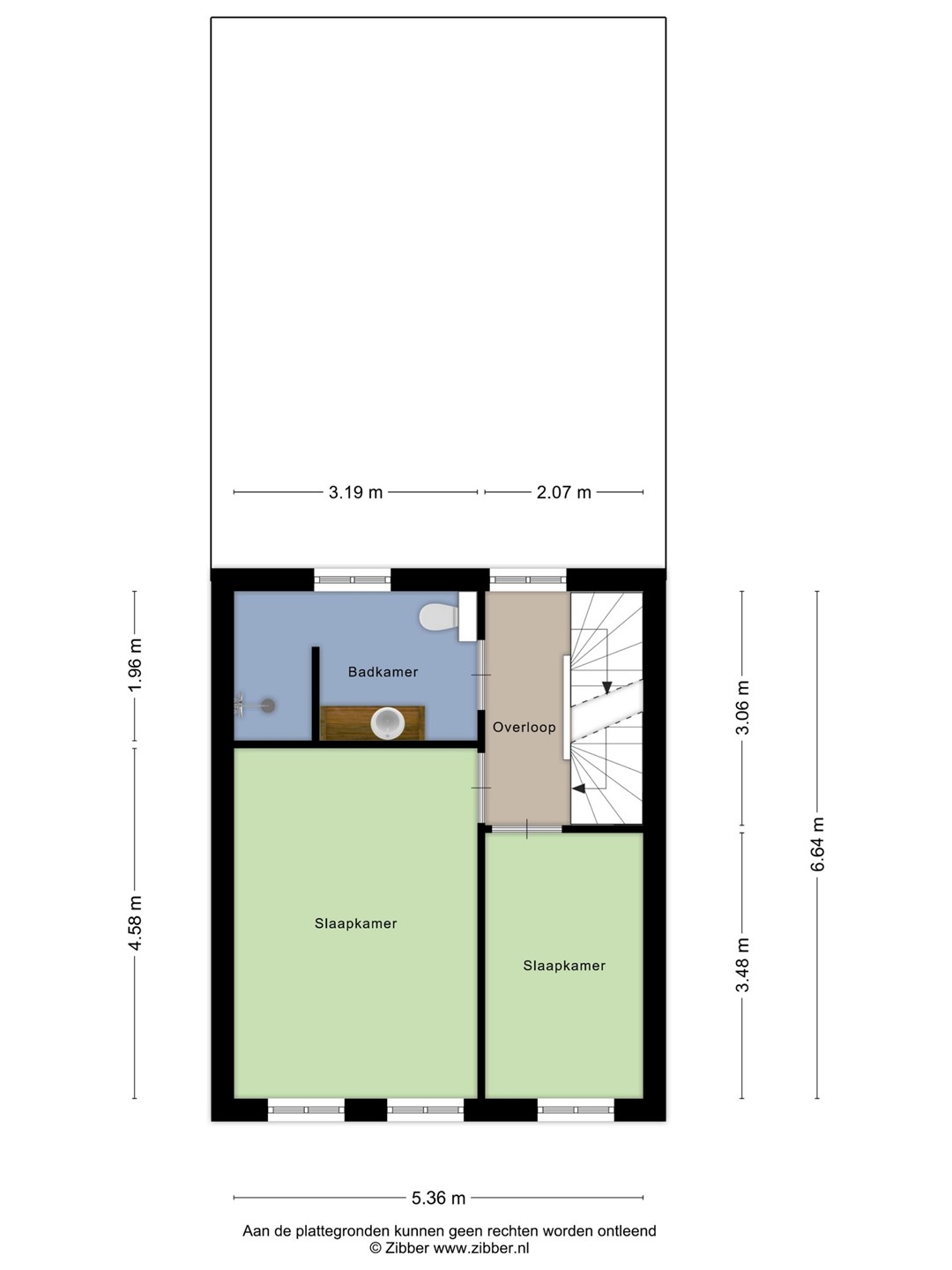
Eerste verdieping:
Overloop met toegang tot twee ruime slaapkamers en een fraai afgewerkte, volledig betegelde badkamer. De badkamer is van alle gemakken voorzien: een inloop regendouche, wastafel en tweede toilet.

Tweede verdieping:
Via een vaste trap bereik je de overloop met toegang tot de vierde slaapkamer. Deze ruimte is voorzien van praktische bergruimte en een Velux-dakraam.

Buitenruimte:
De onderhoudsvriendelijke achtertuin is volledig omheind en beschikt over een vrijstaande houten berging. Ideaal voor fietsen, tuinspullen of hobby’s.

Algemeen:
- Bouwjaar 2008;
- Energielabel A++;
- Volledig voorzien van isolerende beglazing en hardhouten kozijnen;
- Maar liefst 19 zonnepanelen geplaatst in 2023 (ABC Zonnepanelen);
- Vier slaapkamers totaal;
- Volledig instapklaar!

Ben je op zoek naar een comfortabele, ruime én duurzame woning op een toplocatie? Wacht dan niet langer en plan snel een bezichtiging. Deze woning moet je echt van binnen zien! 088 - 566 72 00

Kaart

Kenmerken

Overdracht

Referentienummer
1092
Vraagprijs
€ 427.500,- k.k.
Aanvaarding
In overleg
Aangeboden sinds
Woensdag 7 mei 2025
Laatste wijziging
Donderdag 5 maart 2026

Bouw

Type object
Woonhuis, eengezinswoning, tussenwoning
Soort bouw
Bestaande bouw
Bouwperiode
2008
Dakbedekking
Dakpannen
Type dak
Zadeldak
Isolatievormen
Dakisolatie
Dubbel glas
Muurisolatie
Spouwmuren
Vloerisolatie
Volledig geïsoleerd

Oppervlaktes en inhoud

Perceeloppervlakte
160 m²
Woonoppervlakte
130,9 m²
Inhoud
464 m³

Indeling

Aantal bouwlagen
3
Aantal kamers
5 (waarvan 4 slaapkamers)
Aantal badkamers
1 (en 1 apart toilet)

Locatie

Ligging
Aan rustige weg
Dichtbij openbaar vervoer
In woonwijk

Tuin

Type
Voortuin
Oriëntering
Zuiden
Staat
Prachtig aangelegd
Tuin 2 - Type
Achtertuin
Tuin 2 - Oriëntering
Noorden
Tuin 2 - Heeft een achterom
Ja
Tuin 2 - Staat
Prachtig aangelegd

Energieverbruik

Energielabel
A++

CV ketel

CV ketel
Nefit
Warmtebron
Gas
Bouwjaar
2018
Combiketel
Ja
Eigendom
Eigendom

Uitrusting

Warm water
CV-ketel
Verwarmingssysteem
Centrale verwarming
Badkamervoorzieningen
Inloopdouche
Toilet
Wastafelmeubel
Heeft kabel-tv
Ja
Glasvezelaansluiting aanwezig
Ja
Tuin aanwezig
Ja
Beschikt over een internetverbinding
Ja
Heeft rolluiken
Ja
Heeft schuur/berging
Ja
Heeft zonnepanelen
Ja

Kadastrale gegevens

Kadastrale aanduiding
Terneuzen T 1386
Perceeloppervlakte
160 m²
Omvang
Geheel perceel
Eigendomsituatie
Eigen grond
Open huis 28 maart 11:00 - 15:00
Open Huizen Dag – Zaterdag 28 maart

Kom vrijblijvend een kijkje nemen tijdens de Open Huizen Dag op zaterdag 28 maart tussen 11:00 en 15:00 uur. Tijdens deze dag staat de deur open en kun je de woning rustig komen bekijken.

De eigenaar van de woning is zelf aanwezig en laat je graag alles zien en vertelt met plezier meer over het huis en de omgeving.

Je bent van harte welkom om binnen te lopen!