Nieuw in verkoop:Veerdijk 82, 4588 PA Walsoorden - Foto
Nieuw in verkoop
+24

Veerdijk 82 4588 PA Walsoorden € 897.500,- k.k.

  • Appartement
  • 3 kamers
  • 2 slaapkamers
  • 1 badkamers
  • Bouwjaar 2025
  • 88 m² gebruiksoppervlakte
  • A+++ Energielabel A+++

Beschrijving

Exclusief wonen aan de Westerschelde: luxe appartement met panoramisch uitzicht op de bovenste verdieping.

Laat je verrassen door het ongekende woongenot op een steenworp afstand van de Westerschelde! Ben jij klaar voor een volgende stap in je woon carrière, zoek je rust en comfort of fantaseer je juist over een tweede thuis waar je lekker tot jezelf kunt komen? Dan zou ik hier maar eens goed naar kijken!

Sfeervol appartement in een vriendelijke buurt:
Dit geweldige appartement aan de Veerdijk 82 in Walsoorden telt niet alleen een fijne ligging, maar brengt ook een berg comfort met zich mee! Hier woon je vlak bij het water, in een gezellige straat, omgeven door groen en weidse uitzichten. Of je nu houdt van een ontspannen wandeling door de buurt of een terrasje in het dorp: het is allemaal binnen handbereik. En laten we eerlijk zijn, dat is toch precies wat het leven mooi maakt?

Speciaal voor jou: ideaal als tweede huis of permanente stek:
Ben je toe aan een plek waar je heerlijk tot rust kan komen, los van alle drukte? Of zoek je een fijn appartement waar alles gelijkvloers is? Van harte welkom hier! Dit appartement is bijzonder geschikt voor ouderen vanwege de overzichtelijke indeling, comfortabele leefruimtes en gemakkelijke toegankelijkheid. Maar ook voor wie liever even ontsnapt aan het stadsleven: een tweede verblijf is hier toegestaan. Dat geeft je precies die vrijheid om te genieten welke dag van de week het ook is.

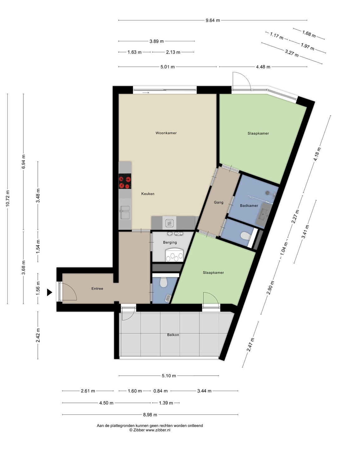
Indeling die klopt als een bus:
Zodra je binnenloopt, voel je dat dit appartement met zorg is ontworpen. De lichte woonkamer grenst direct aan een knusse balkonruimte, daar kun je in de ochtendzon genieten van een heerlijk kopje koffie. De keuken is praktisch en open, perfect om, zelfs bij het koken, contact te houden met het gezelschap. De slaapkamer is ruim en rustig gelegen, de absolute plek om lekker bij te tanken na een lange dag. Ook aan opbergruimte geen gebrek en de badkamer is fris, licht en functioneel, zoals het hoort.

Comfort, gemak en alles lekker binnen handbereik:
De portiekflat heeft alles voor een weldadig bestaan: weinig onderhoud, een goed werkende Vereniging van Eigenaren en een actieve gemeenschap om je heen. Zo ben je voorzien van alle gemakken en hoef je niet te piekeren over praktische zaken. Daar kun je tenminste op bouwen!

Walsoorden: het ‘geheim’ van Zeeuws-Vlaanderen:
Vraag je je wellicht af: waarom Walsoorden? Nou, dit is zo’n plek waar je nog de échte, ongehaaste sfeer vindt van Zeeland. Fiets- en wandelpaden slingeren langs het water, de duinen en de polders. Je flaneert zó naar de dijk voor een frisse neus. Bovendien ben je snel in grotere plaatsen als Terneuzen of Hulst. Ook België ligt verrassend dichtbij, ideaal voor dagjes uit. Kortom, je leefomgeving wordt hier ineens een stuk rijker.

Voor wie graag z’n eigen koers vaart:
Dit appartement aan de Veerdijk 82 spreekt iedereen aan die zijn of haar leven graag zelf indeelt. Hier kies je voor flexibiliteit, comfort en het gevoel van écht thuiskomen. Dus, lijkt het je wat om hier je nieuwe hoofdstuk te beginnen? Pak je kans en kom gewoon eens kijken. Wedden dat je meteen enthousiast bent?

*De BOV van dit appartement is 100m2

Wil je meer weten of een kijkje nemen? Bel of mail gerust, ik zet de deur alvast voor je open!

Kaart

Kenmerken

Overdracht

Referentienummer
1216
Vraagprijs
€ 897.500,- k.k.
Servicekosten
€ 195,28
Inrichting
Niet gestoffeerd
Inrichting
Niet gemeubileerd
Status
Nieuw in verkoop
Aanvaarding
Direct
Aangeboden sinds
Woensdag 18 februari 2026

Bouw

Type object
Appartement, portiekflat
Woonlaag
3e woonlaag
Soort bouw
Bestaande bouw
Bouwperiode
2025
Dakbedekking
Bitumen
Type dak
Platdak
Isolatievormen
Volledig geïsoleerd

Oppervlaktes en inhoud

Woonoppervlakte
88,4 m²
Woonkameroppervlakte
34,5 m²
Inhoud
292 m³
Oppervlakte externe bergruimte
19 m²
Oppervlakte gebouwgebonden buitenruimte
13,4 m²
Balkonoppervlakte
23,5 m²

Indeling

Aantal bouwlagen
1
Aantal kamers
3 (waarvan 2 slaapkamers)
Aantal badkamers
1 (en 1 apart toilet)

Locatie

Ligging
Aan vaarwater
Aan water

Energieverbruik

Energielabel
A+++

Uitrusting

Aantal parkeerplaatsen
1
Aantal overdekte parkeerplaatsen
1
Warm water
Elektrische boiler
Verwarmingssysteem
Vloerverwarming
Warmtepomp
Ventilatie methode
Balansventilatie
Badkamervoorzieningen
Inloopdouche
Wastafelmeubel
Parkeergelegenheid
Parkeerkelder
Heeft een balkon
Ja
Heeft een lift
Ja
Glasvezelaansluiting aanwezig
Ja
Beschikt over een internetverbinding
Ja
Heeft schuur/berging
Ja
Heeft een schuifpui
Ja

Vereniging van Eigenaren

Ingeschreven bij de KvK
Ja
Jaarlijkse vergadering
Ja
Periodieke bijdrage
Ja
Opstal verzekering
Ja

Kadastrale gegevens

Kadastrale aanduiding
Hontenisse L 1709
Perceeloppervlakte
1.645 m²
Omvang
Appartementsrecht of complex
Eigendomsituatie
Eigen grond
Indexnummer
35
Kadastrale aanduiding
Hontenisse L 1709
Perceeloppervlakte
1.645 m²
Omvang
Appartementsrecht of complex
Eigendomsituatie
Eigen grond
Indexnummer
18
Kadastrale aanduiding
Hontenisse L 1709
Perceeloppervlakte
1.645 m²
Omvang
Appartementsrecht of complex
Eigendomsituatie
Eigen grond
Indexnummer
51